Matic Vrabič

Mertelj Vrabič Arhitekti

Arhitektura

Notranja oprema

Oblikovanje

Biografija

Matic Vrabič se v sklopu svoje prakse poleg arhitekturnega načrtovanja pogosto ukvarja z oblikovanjem in kuratorstvom in je soustanovitelj arhitekturnega biroja Mertelj Vrabič Arhitekti, ki deluje v Ljubljani od leta 2015. Njegovo delo vključuje oblikovanje pohištva, oblikovanje in kuriranje razstav, prenove objektov različnih meril in projektiranje samostojnih stavb. Je soavtor slovenskega paviljona na 18. mednarodni arhitekturni razstavi La Biennale di Venezia v Benetkah, kot gostujoči predavatelj in kritik pa je predaval na več evropskih univerzah.

Področje dela

Arhitektura Notranja oprema Oblikovanje

Nagrade

Valvasorjeva nagrada

Nagrade za oblikovalske projekte, ki izstopajo po trajnostnih pristopih, uporabi okolju prijaznih materialov in procesov

Nagrade za izjemne dosežke v oblikovanju interierjev, prostorske postavitve, ambientov, pohištva itd.

Ljubljana, Slovenija
Referenčni projekt #1

Referenčni projekt #1

Aktivnosti projekta

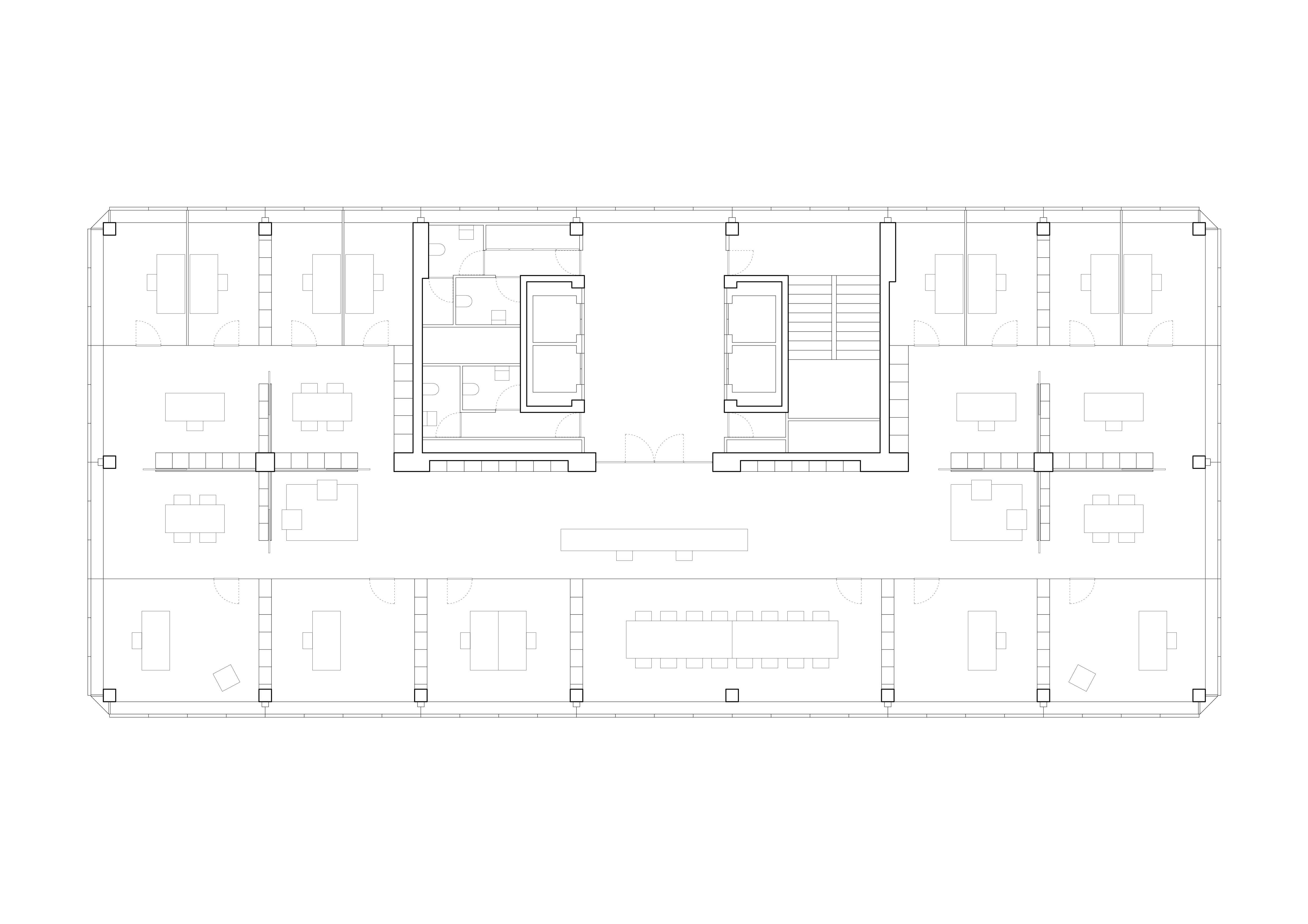
PRENOVA 13. NADSTROPJA STAVBE METALKA Prenova uvaja prilagodljivo pisarniško okolje z večnamenskimi lesenimi omarami, ki so usklajene s strukturno mrežo stavbe. Ti elementi brišejo običajne razlike med konstrukcijo, pohištvom in ograjo, saj hkrati služijo kot predelne stene in shramba. Križno oblikovane skupine omar na vsakem koncu avle ustvarjajo dodatne funkcije, kot so čajna kuhinja, sobe za usposabljanje, majhen konferenčni prostor in recepcija. Drsna vrata omogočajo gladek prehod med javnimi, poljavnimi in zasebnimi conami. Rebraste steklene stene dodatno mehčajo prostorske meje in krepijo občutek večplastne preglednosti notranjosti.

Dodana vrednost kreativnega doprinosa k projektu

Celostna arhitekturna prenova nadstropja: oblikovna in funkcionalna prilagoditev nadstropja, kjer je bilo prej več pisarn različnih podjetij, za potrebe enega podjetja.

Ključne besede

Arhitektura, Oblikovanje

Naročnik

Pravna pisarna SK

Vrednost projekta

400000 EUR

Spletna stran

https://www.merteljvrabic.com/sl/pravne-pisarne-sk/

STORITVENI SEKTOR

Referenčni projekt #2

Referenčni projekt #2

Aktivnosti projekta

Hiša v Podutiku organizira servisne funkcije znotraj štirih obodnih betonskih jeder, ki strukturno podpirajo talne plošče, hkrati pa uokvirjajo razglede in zagotavljajo senčne zunanje cone. Dostopna pot sledi naravnemu terenu, zgornja plošča pa služi tudi kot vhodna nadstrešnica in parkirno zavetje. Jedra ustvarjajo zelo odprt in nedoločen osrednji bivalni prostor, ki omogoča fleksibilnost pri prostorski rabi. V zgornjem nadstropju lahke lesene omare subtilno opredeljujejo zasebne spalnice. Monolitni in racionalen značaj hiše vzpostavlja nameren kontrast z okoliško raznoliko, organsko pokrajino – interakcijo, ki povečuje prisotnost obeh.

Dodana vrednost kreativnega doprinosa k projektu

Dovršena arhitektura in detajli.

Ključne besede

Arhitektura, Oblikovanje

Naročnik

Hiša v Podutiku

Vrednost projekta

/ EUR

Spletna stran

https://www.merteljvrabic.com/sl/hisa-v-podutiku/

STORITVENI SEKTOR

Referenčni projekt #3

Referenčni projekt #3

Aktivnosti projekta

SLOVENSKI PAVILJON NA 18. BENETSKEM ARHITEKTURNEM BIENALU 2023: +/– 1 °C V ISKANJU UMERJENE ARHITEKTURE Slovenski paviljon na beneškem bienalu je predstavil pet ključnih strategij ekološke arhitekture – prostor v prostoru, vročo točko, vmesno območje, kokon in prostorsko stiskanje. Z instalacijo v polni velikosti je predstavil več kot 50 študij primerov vernakularnih arhitektov evropskih arhitektov. Paviljon, zgrajen iz naravnih materialov – opeke, ki se dviga iz tal, ter sten in stropov iz lesenih okvirjev z raztegnjenim volnenim filcem, je bil zasnovan za razstavljanje in ponovno uporabo. Njegova abstraktna, a hkrati materialna prisotnost je ponujala poglobljeno prostorsko izkušnjo, ki je na novo interpretirala vernakularne prakse kot ustrezne modele za sodobno življenje. Po bienalu je bila instalacija prilagojena za stalno razstavo v Muzeju na prostem Molfsee v Nemčiji. Spremljajoča publikacija Muzeja za arhitekturo in oblikovanje (MAO) Ljubljana je zagotovila obsežne raziskave in dokumentacijo.

Dodana vrednost kreativnega doprinosa k projektu

Celostna zasnova projekta, strateško svetovanje, nadzor nad izvedbo

Ključne besede

Arhitektura, Oblikovanje, Kuratorstvo

Naročnik

MAO - Muzej za arhitekturo in oblikovanje

Vrednost projekta

100000 EUR

Spletna stran

https://www.merteljvrabic.com/sl/la-biennale-di-venezia-2023/

IZOBRAŽEVALNI SEKTOR